На основу члана 63. став 2.Закона о планирању и изградњи (“Службени гласникРС”, бр. 72 од 3. септембра 2009, бр.81 од 2. октобра 2009 – исправка, бр.64 од 10. септембра 2010 – УС, бр.24 од 4. априла 2011, бр.121 од 24. децембра 2012, бр.42 од 14. маја 2013 – УС, бр.50 од 7. јуна 2013 – УС, бр. 98 од 8. новембра 2013 – УСибр.132,145/2014, 83/2018,31/2019и 37/2019) и члана 88. став 2. и члана 91. став 1. Правилника о садржини, начину и поступку израде докумената просторног и урбанистичког планирањаизградњи („Службени гласник Републике Србије“бр. 32/2019. године)
Одељење за урбанизам, привреду и инспекцијске послове
Општинске управе Бела Цркваоглашава
ЈАВНУ ПРЕЗЕНТАЦИЈУ УРБАНИСТИЧКОГ ПРОЈЕКТA
ЗА ПОТРЕБЕ УРБАНИСТИЧКО-АРХИТЕКТОНСКЕ РАЗРАДЕ ЛОКАЦИЈЕ
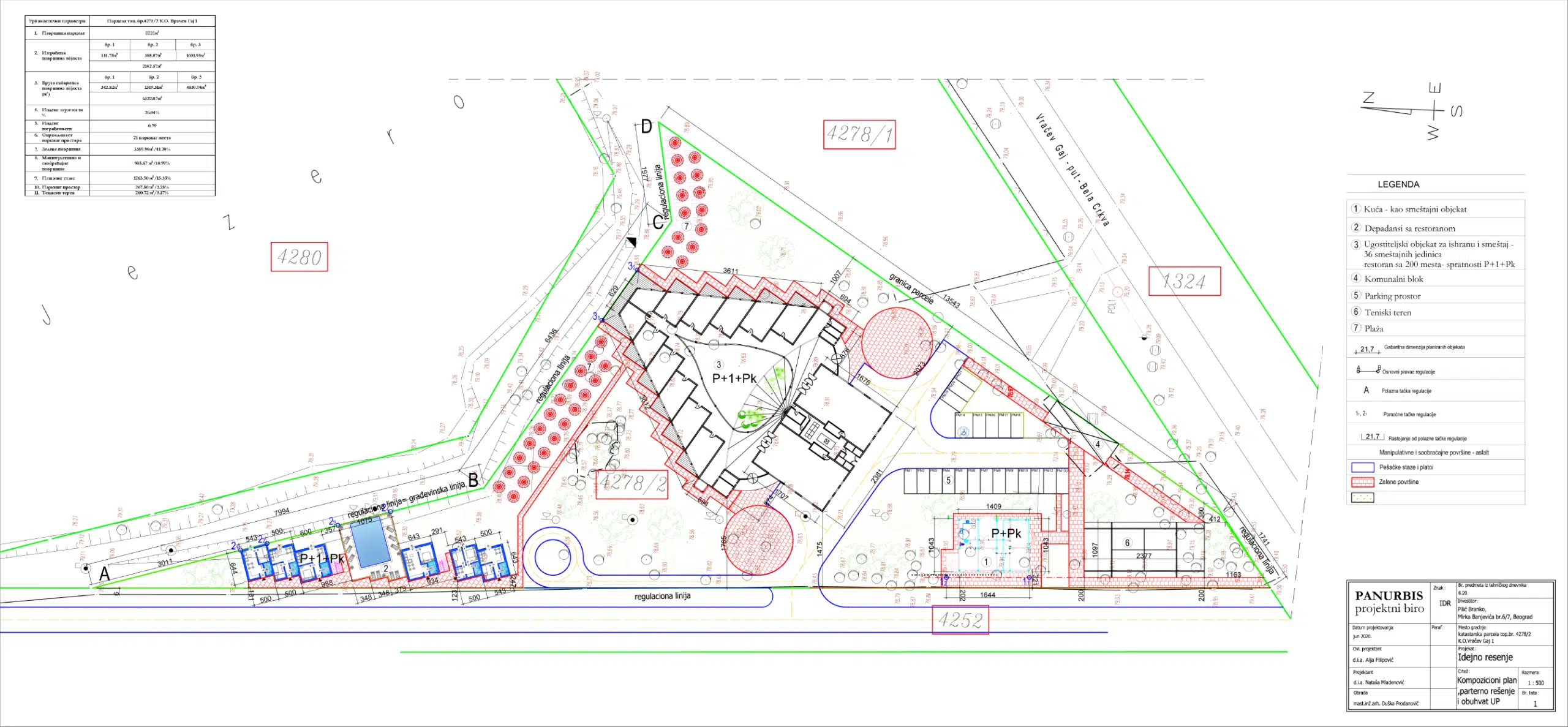
Tуристичко-апартманског комплекса на катастарској парцели број
4278/2, К.О. Врачев Гај 1
Инвеститор:Пилић Бранко, ул.Мирка Бањевића бр.6/7, Београд
Локација:Бела Црква, кат. парцела топ.бр. 4278/2, КО Врачев Гај 1.
Носилац израде УП-а: „ПАНУРБИС“ доо за просторно планирање,
Максима Горког 2, Панчево.
Позијаву се сва заинтересована правна и физичка лица да изврше увид у урбанистички пројекат, као и да у току трајања јавне презентације доставе своје примедбе и сугестије у писаном облику.
Јавна презентација одржаће се од 23. јуна до 30. јуна 2020. годинеу просторијама Одељења за урбанизам, привреду и инспекцијске послове Општинске управе Бела Црква, ул.Милетићева бр.2,сваког радног дана од 10 до 14 часова,(телефон 013/851-224, локал 113), као и преко интернет странице Општинског сајта www.backspace.agency/belacrkva.
Овлашћено лице за сва потребна обавештења о садржајуУрбанистичког пројекта је Брадваровић Татјана дипл.инж.арх., у својству стручног саветника за урбанизам.
Примедбе на планирана решења у току јавног увида могу се преко писарнице или поште, у писаној форми доставити Одељењу за урбанизам, привреду и инспекцијске послове Општинске управе Бела Црква, најкасније до 30. јуна2020. године.
kopija katastarskog plana 2 (1)
Примедбе доставити путем поште, или преко шалтерске службе Општинске писарнице.
